Пенал Telescopica 600+600х2100 мм
- Обзор
- Характеристики
- Отзывы (0)
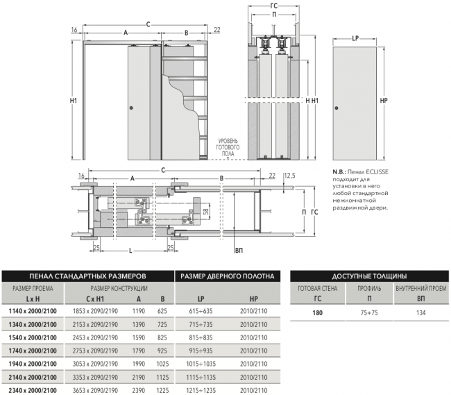
Пенал Telescopica для сдвоенных дверных полотен, убирающихся в одну сторону.Пенал Telescopica позволяет сдвинуть двустворчатую раздвижную дверь в одну стену, значительно экономя пространство. В соответствии с современными тенденциями, появляется возможность создавать просторные и светлые помещения. Стандартная толщина стены, в которую может быть установлен пенал - 180мм.
Отзывов нет










